Descrizione
Nel cuore verde di Vacallo, in un contesto tranquillo e armonioso, sta per prendere vita la Residenza Max, una nuova realizzazione che coniuga raffinatezza architettonica, comfort moderno e qualità abitativa.
Un piccolo complesso esclusivo composto da soli tre appartamenti, dove ogni spazio è pensato per accogliere la luce, il silenzio e la bellezza del vivere bene.
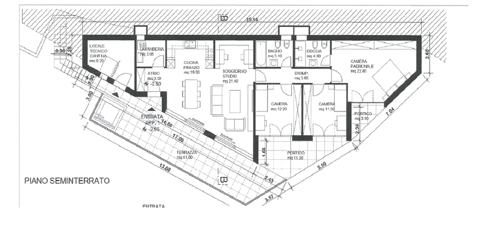
Sono disponibili un appartamento da 3.5 locali e due appartamenti da 4.5 locali, tutti progettati con linee contemporanee, materiali di pregio e un’attenzione particolare ai dettagli che fanno la differenza.
Grandi vetrate si aprono su ampie terrazze soleggiate, creando un dialogo naturale tra interno ed esterno. Ogni abitazione dispone di due posti auto privati, garantendo comodità e indipendenza.
La posizione della Residenza Max è semplicemente ideale: a pochi passi da scuole, negozi, farmacia e trasporti pubblici, ma immersa in un’atmosfera di serenità e discrezione.
Un luogo dove la vita quotidiana diventa più semplice, e ogni giornata si colora di comfort e bellezza.
Residenza Max non è solo una nuova casa — è un modo di vivere, elegante e autentico, nel cuore di Vacallo.
Contatti agente
Alessandro Ronchi
+41 78 215 44 06
Dettagli
Tipo di proprietà
Appartamenti
Locali
Camere
4.5
4.5
Bagni
2
Dimensione
135 MQ
Piani
Anno di costruzione
1
-
Indirizzo










